Wkład Kominkowy Defro Home Intra M Bp Slim G
w sprzedaży
towar niedostępny
dodaj do przechowalni
Opis
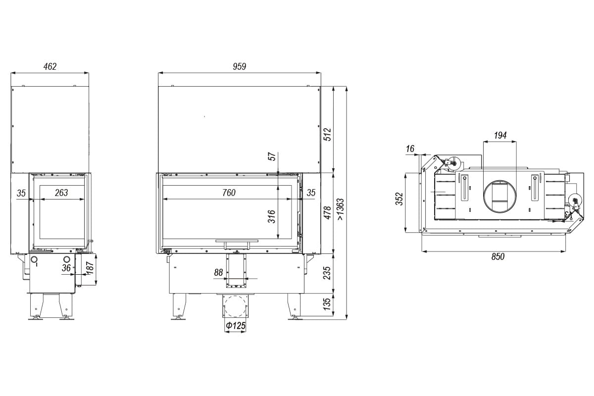
Wkład kominkowy DEFRO HOME INTRA M BP SLIM G
Dane techniczne:
8 kW
3,2 - 9,6 kW
A
200 mm
80,1 %
0,08 %
266°C
12±2 Pa
700 mm
125 mm
400 cm²
560cm²
5 lat
~250 kg
czarny ceramiton, wyjmowany uchwyt do gilotyn, czarna klamka, akumulacja Thermoblock
Seria Defro Home Intra Slim została stworzona z myślą o harmonii pomiędzy ekologią, designem i ekonomią. Wkłady kominkowe z serii Defro Home Intra Slim doskonale sprawdzą się podczas palenia rekreacyjnego i z powodzeniem ogrzeją cały dom. Nowoczesna konstrukcja i szczelne palenisko pozwala aby się cieszyć jego możliwościami w domach pasywnych oraz z rekuperacją.
Autorskie rozwiązania gwarantują oszczędność energii i bezawaryjną obsługę urządzenia.
Seria występuje w dwóch odsłonach, w zależności od wielkości paleniska: SM i ME.



Opcje dodatkowe:
Nowoczesne stalowe ramki ozdobne do wkładów kominkowych pozwalają w prosty sposób wykończyć połączenie obudowy wkładu z drzwiami wkładu kominkowego. Główną zaletą ramki jest możliwość szybkiego i łatwego montażu. Instalację blendy można wykonać samemu, bez konieczności użycia specjalistycznych narzędzi.
Ramka ozdobna jest pomalowana farbą odporną na wysokie temperatury w kolorze wkładu co powoduje, że całość idealnie się komponuje, wygląda estetycznie i bardzo elegancko.


Dla wszystkich pragnących zmaksymalizować odzysk ciepła ze swojego kominka, mamy autorskie rozwiązanie akumulacji THERMOBLOCK. Nowym użytkownikom kominków pozwala cieszyć się ze swojego ekologicznego źródła ogrzewania emitującego przyjazne i naturalnie zdrowe ciepło na drodze radiacji.
Materiał THERMOBLOCKu zapewni długofalowe działanie oraz zoptymalizuje moc wkładu kominkowego. Rozbudowany system zawiesi i nasad akumulacyjnych pozwala na spersonalizowanie THERMOBLOCKa do potrzeb każdego wnętrza.
Najważniejsze zalety:
- zmaksymalizowany odzysk ciepła ze spalin kominkowych
- autorski skład mieszanki szamotowej THERMOBLOCK (oddawanie zakumulowanego ciepła także po zakończeniu palenia we wkładzie)
- opatentowana esencja akumulacji o doskonałych parametrach koncentrujących i przewodzących ciepło
- nie wymaga żadnej impregnacji, jest jednorodnym i spójnym materiałem
- nie pyli, nie wydziela żadnych zapachów i szkodliwych substancji
- możliwość doboru odpowiedniej ilości nasad wg zapotrzebowania Klienta
- pomoc przy optymalizacji mocy i sprawności wkładu kominkowego
- idealnie dopasowane nasady, nie wymagają cięcia i dodatkowego formowania
- zwiększenie pojemności cieplnej kominka
- zmaksymalizowany odzysk ciepła metodą konwekcji z wkładu kominkowego

Zestaw zawiesi akumulacyjnych tylnych:
- możliwość doboru odpowiedniej ilości zawiesi wg zapotrzebowania Klienta
- dedykowany metalowy uchwyt mocujący akumulację
- waga 1 zestawu zawiesia bocznego to 16 kg

Pliki do pobrania:
Dane techniczne
| Dolot Powietrza | Tak |
| Materiał | Urządzenia stalowe |
| Do Rekuperacji | Tak |
| Eko Projekt | Tak |
| Współpraca z DGP | Tak |
| Szerokość | 81-90 cm |
| Otwieranie Drzwi | Do Góry (Gilotyna) |
| Paliwo, Opał | Drewno, Brykiet |
| Moc Nominalna | 8 kw (ogrzewa 80 m2) |
| Przeszklenie | Szyba Narożna |
Koszty dostawy
Cena nie zawiera ewentualnych kosztów płatności
Opinie o produkcie (0)
Zaloguj się
Waluty
Wyświetlane są wszystkie opinie (pozytywne i negatywne). Nie weryfikujemy, czy pochodzą one od klientów, którzy kupili dany produkt.